Are you interested in inspecting this property?
Get in touch to request an inspection.
House for Sale in Lyttelton
A Home You'll Love & Land for Your Future
- 3 Beds
- 1 Bath
- 1 Car
Additional Information:
More InfoTo access the property files, copy and paste this link into your browser: https://filefling.co.nz/property/13daysroad000
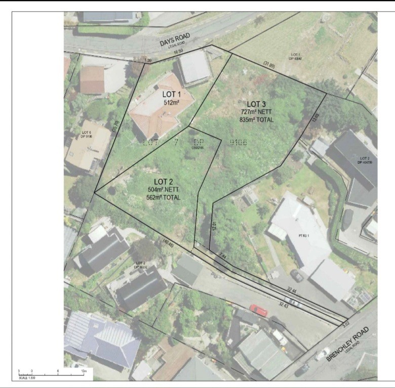
A warm, inviting 3-bedroom home set on an expansive 1,910m² section with subdivision potential (concept plans already drawn and available). Enjoy the lifestyle now - big harbour views, a sunny deck with spa, established gardens, and fruit trees - while unlocking future value at your own pace.
This is a standout opportunity - you can either live in or rent out the existing home while you build on the newly created site, then sell either or hold for long-term gain.
Live, rent, develop, or hold - a unique chance to secure both a home and a future investment in one of Lyttelton's most elevated, sunny positions.
Key features:
- 3-bed character home with upgraded kitchen and bathroom
- Upgraded electrics, plumbing and insulation
- Large deck + spa + sweeping harbour views
- Sunny 1,910m² section
- Concept plans indicating subdivision potential
- Beautiful established grounds
- Drive-on access from Brenchley Road
- Potential for dual access.
A golden opportunity for homeowners, investors, or developers and Lyttelton's only current home + land offering on the market!
Do not wait, contact Emma Shine today to secure this incredible opportunity.
Enquiries over $750,000.00
- Living Room
- Electric Hot Water
- Heat Pump
- Standard Kitchen
- Open Plan Dining
- Combined Bathroom/s
- Combined Lounge/Dining
- Electric Stove
- Good Interior Condition
- Double Garage
- Partially Fenced
- Good Exterior Condition
- Harbour Sea Views
- City Sewage
- Town Water
- Street Frontage
- Shops Nearby
- Public Transport Nearby
See all features
- Fixed Floor Coverings
- Dishwasher
- Light Fittings
- Cooktop Oven
- Extractor Fan
NWB33067
110m²
1,910m² / 0.47 acres
1 garage space
3
1
Additional Information:
More InfoAgents
- Loading...
Loan Market
Loan Market mortgage brokers aren’t owned by a bank, they work for you. With access to over 20 lenders they’ll work with you to find a competitive loan to suit your needs.
