Are you interested in inspecting this property?
Get in touch to request an inspection.
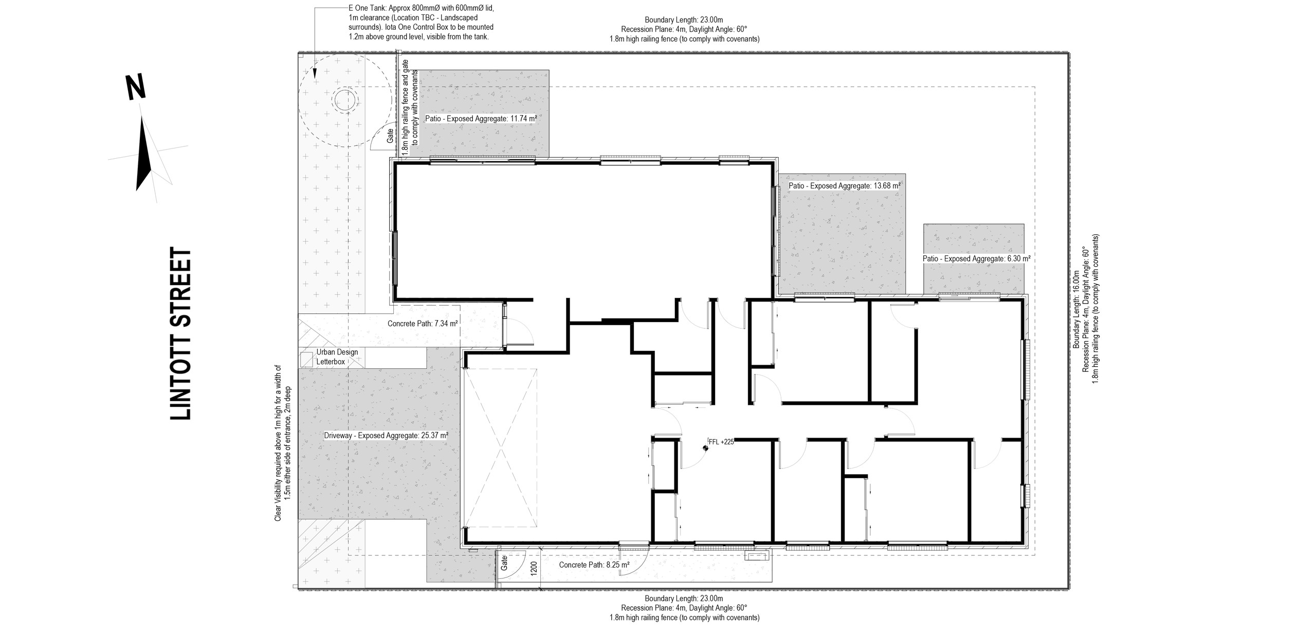
House for Sale in Kaiapoi
Exceptional Value, Brand New Home in Beach Grove
- 4 Beds
- 2 Baths
- 2 Cars
Additional Information:
More InfoREADY IN JANUARY! Why compromise when you can have it all? This stunning new four-bedroom home in Beach Grove delivers outstanding value without sacrificing style or space.
Thoughtfully designed to maximise natural light and indoor-outdoor flow, the open-plan kitchen, dining, and living area opens to a fully landscaped, private section, perfect for relaxed family living or entertaining guests. The master suite features a walk-in wardrobe and tiled ensuite, while the other additional double bedrooms are serviced by a well-appointed family bathroom.
Quality features throughout include:
Stone benchtop
Samsung appliances
Walk-in pantry
Tiled shower
Godfrey Hirst flooring
Internal access double garage
All this, while being close to the heart of Kaiapoi town centre and a short commute to Christchurch. You're also moments from beaches, rivers, cycling trails, kayaking spots, and golf courses, embracing the best of lifestyle and location.
Don't miss your opportunity to secure incredible value in a fast-growing community.
For further information get in touch with Tony today!
- Living Room
PGS30656
175m²
368m² / 0.09 acres
2 garage spaces
4
2
Additional Information:
More InfoAll information about the property has been provided to Ray White by third parties. Ray White has not verified the information and does not warrant its accuracy or completeness. Parties should make and rely on their own enquiries in relation to the property.
Documents
Attachments
Rates 14 Lintott Street
Title 14 Lintott Street
LLUR 14 Lintott Street
Agents
- Loading...
Loan Market
Loan Market mortgage brokers aren’t owned by a bank, they work for you. With access to over 20 lenders they’ll work with you to find a competitive loan to suit your needs.
