Are you interested in inspecting this property?
Get in touch to request an inspection.
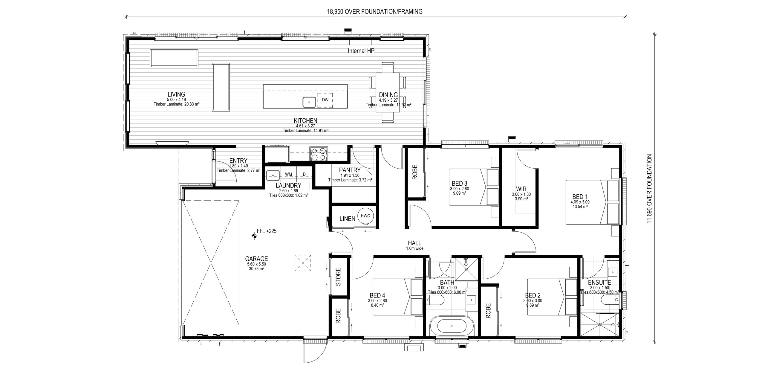
House for Sale in Kaiapoi
Exceptional value, unbeatable lifestyle!
- 4 Beds
- 2 Baths
- 2 Cars
Additional Information:
More InfoREADY IN JANUARY! This beautifully designed four-bedroom, two-bathroom home offers the perfect blend of comfort, space, and style. Thoughtfully positioned to capture all-day sun, the north-facing open-plan kitchen, dining, and living area is the heart of the home, complete with seamless indoor-outdoor flow, ideal for entertaining or relaxing with family.
Enjoy premium features throughout, including a tiled ensuite shower, stone benchtops, Samsung appliances, and stylish Godfrey Hirst flooring. The generous master suite boasts a walk-in wardrobe, while the modern kitchen impresses with a walk-in pantry and quality finishes.
Fully landscaped and featuring a double internal garage, this home sits just 900 metres from the heart of Kaiapoi and offers easy access to outdoor adventures-beach days, kayaking, cycling, fishing, and more-all just minutes from your doorstep. Plus, Christchurch city is a short, convenient commute away.
Your new home and lifestyle awaits at Beach Grove. Contact Tony for more information.
- Living Room
PGS30658
175m²
368m² / 0.09 acres
2 garage spaces
4
2
Additional Information:
More InfoAll information about the property has been provided to Ray White by third parties. Ray White has not verified the information and does not warrant its accuracy or completeness. Parties should make and rely on their own enquiries in relation to the property.
Documents
Attachments
LLUR 4 Lintott Street
Rates 4 Lintott Street
Title 4 Lintott Street
Agents
- Loading...
Loan Market
Loan Market mortgage brokers aren’t owned by a bank, they work for you. With access to over 20 lenders they’ll work with you to find a competitive loan to suit your needs.
